Používáme cookies k optimalizaci našich webových stránek a našich služeb. Další informace o cookies najdete zde.

Nastavení


Byt 2+kk - Poděbrady

Byt 2+kk - Poděbrady

Hledáte příjemné místo k bydlení v centru Poděbrad, odkud máte vše na dosah nebo dobrou obchodní příležitost? Tento šikovně řešený byt 2+kk o velikosti 44 m² s malým balkónkem vám nabídne přesně to – pohodlné bydlení, nízké náklady i výbornou atmosféru lázeňského města Poděbrady.

Popis nemovitosti

Byt se nachází ve 3. patře (4. NP), je částečně vybavený. Díky praktické dispozici působí byt vzdušně a útulně – ideální pro jednotlivce, pár nebo menší rodinu, který ocení klid, ale přitom má centrum lázeňského města Poděbrady hned za rohem, v docházkové vzdálenosti, s nízkými náklady na bydlení.

 

Základní informace o bytě:

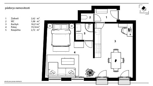
- byt 2+kk 44 m² s 2x balkónem
- 3. patro (4.NP)
- bez výtahu
- byt je částečně vybavený

 

Vybavení:

- kuchyňská linka
- digestoř
- pračka
- sedací souprava
- postel, šatní skříň
- jídelní stůl
- pracovní stůl
- židle

 

Lokalita, která má styl:

- Bydlíte v úplném centru Poděbrad, ale přesto v klidné části
- Kolonáda: 1 minuta.
- Autobus: 2 minuty.
- Vlak: směr Praha / Hradec Králové? 10 minut pěšky
- Obchody, kavárny, služby a lázeňská atmosféra hned za domem

 

Uvedené výměry jsou orientační. Majitel si vyhrazuje právo vybrat zájemce na základě jim zvolených kritérií. Veškeré zveřejněné údaje obsažené v tomto inzerátu mají pouze informativní charakter a nejsou nabídkou ve smyslu § 1731 nebo § 1732 občanského zákoníku, ani se nejedná o veřejný příslib dle § 1733 občanského zákoníku.

 

Pro více informací a prohlídku mě prosím neváhejte kontaktovat,
budu se těšit.

3D scan

Jan Káninský

oceneni_v_inzerci


Jan Káninský

Kontaktní formulář

Stáhnout PDF